一、大兴首邑溪谷怎么样
性价比不错,适合年轻朋友和第一次买房的人,买一层送一层,实际得房后相当于每平米才一万三左右,现在大兴的均价基本在一万九。

二、首邑溪谷真实现状
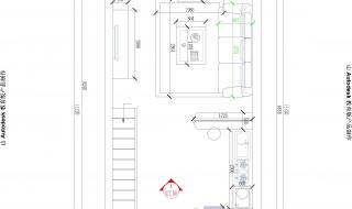
北京大兴首邑溪谷得立方空间是高层户型,从38到68平米的都有,层高4.8米,别看听起来小,实际很划算,上下两层,开发商给隔好的,都能做成两居室使用,而且价格上优势很大,总价120万起,这么算下来首付也就40万左右,比较划算。

文章来源: 熊秀华
版权声明:除非特别标注,否则均为本站原创文章,转载时请以链接形式注明文章出处。
评论列表
希望我的文章对你有所帮助《大兴首邑溪谷怎么样 首邑溪谷户型图》
推荐看看《张杰为张靓颖唱的歌 张靓颖最好听的歌》
推荐看看《小米电视机L60M5一4A换屏幕多少钱 小米现在价格多少钱》
一、大兴首邑溪谷怎么样性价比不错,适合年轻朋友和第一次买房的人,买一层送一层,实际得房后相当于每平米才一万三左右,现在大兴的均价基本在一万九。 二、首邑溪谷真实现状北京大兴首邑溪谷得立方空间是高层户型,从38到68平米的都有,层高4.8米
推荐看看《西安比亚迪入职流程走多久 西安比亚迪招聘》
写的太好了!